造价工程师案例分析章节练习8
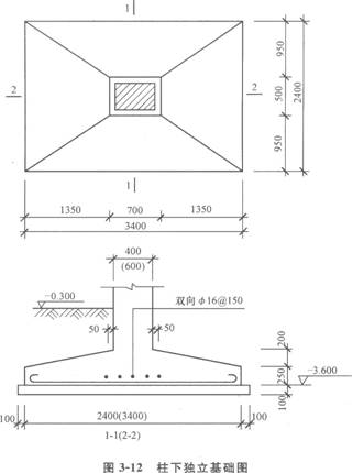
8[简答题] 某工程柱下独立基础如图3—12所示,共l8个。已知:土壤类别为三类土;混凝土现场搅拌,混凝土强度等级;基础垫层Cl0,独立基础及独立柱C20;弃土运距200m;基础回填土夯填;土方挖、填计算均按天然密实土。

问题
1.根据图示内容和《建设工程工程量清单计价规范》的规定,根据表3—41所列清单项目编制±0.000以下的分部分项工程量清单,并将计算过程及结果填人表3—42中。有关分部分项工程量清单统一项目编码见表3—41。

2.某承包商拟投标该工程,根据地质资料,确定柱基础为人工放坡开挖,工作面每边增加0.3m;自垫层上表面开始放坡,放坡系数为0.33;基坑边可堆土490m3;余土用翻斗车外运200m。
该承包商使用的消耗量定额如下:挖1m3土方,用工0.48工日(已包括基底钎探用工);装运(外运200m)1m3土方,用工0.10工日,翻斗车0.069台班。已知:翻斗车台班单价为63.81元/台班,人工单价为22元/工日。
计算承包商挖独立基础土方的人工费、材料费、机械费合价。
3.假定管理费率为l2%,利润率为7%,风险系数为1%。按《建设工程工程量清单计价规
范》有关规定,计算承包商填报的挖独立基础土方工程量清单的综合单价。(风险费以工料机和管理费之和为基数计算)
(注:问题2、3的计算结果要带计量单位)

答案:
表3-67分部分项工程量清单(1)

表3-68分部分项工程量清单(2)


(责任编辑:LX)





